Се издава канцеларија во Карпош (во близина на Ми Да)
- 15€
Се издава канцеларија во Карпош (во близина на Ми Да)
- 15€
Преглед
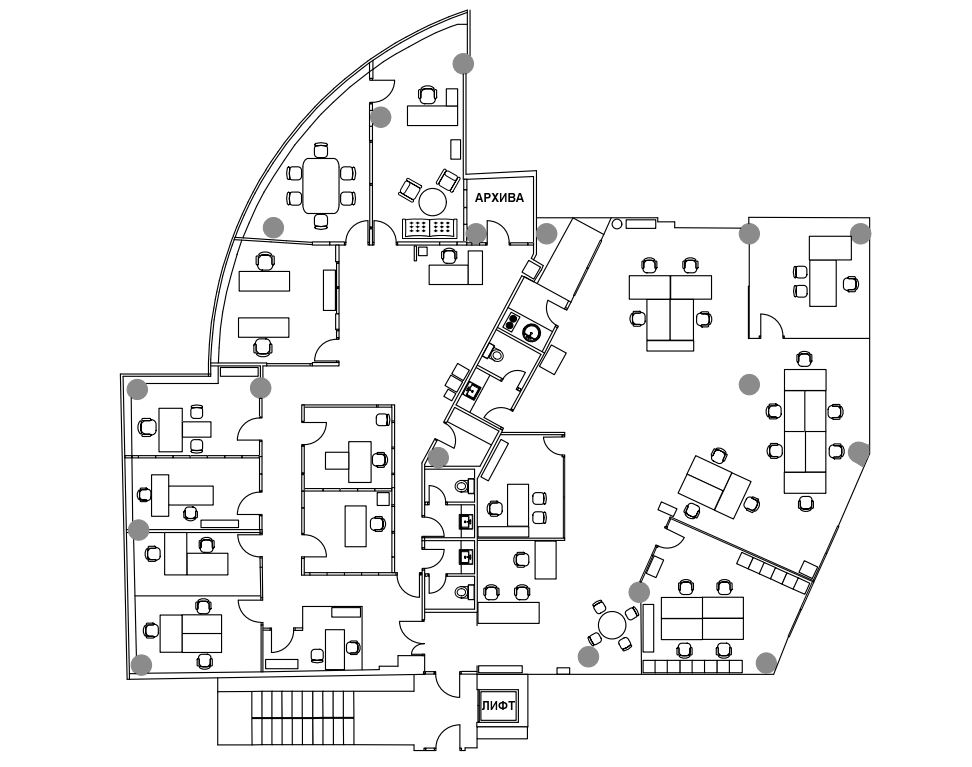
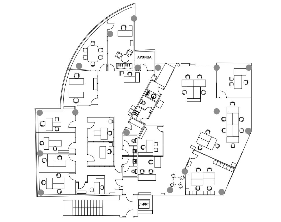
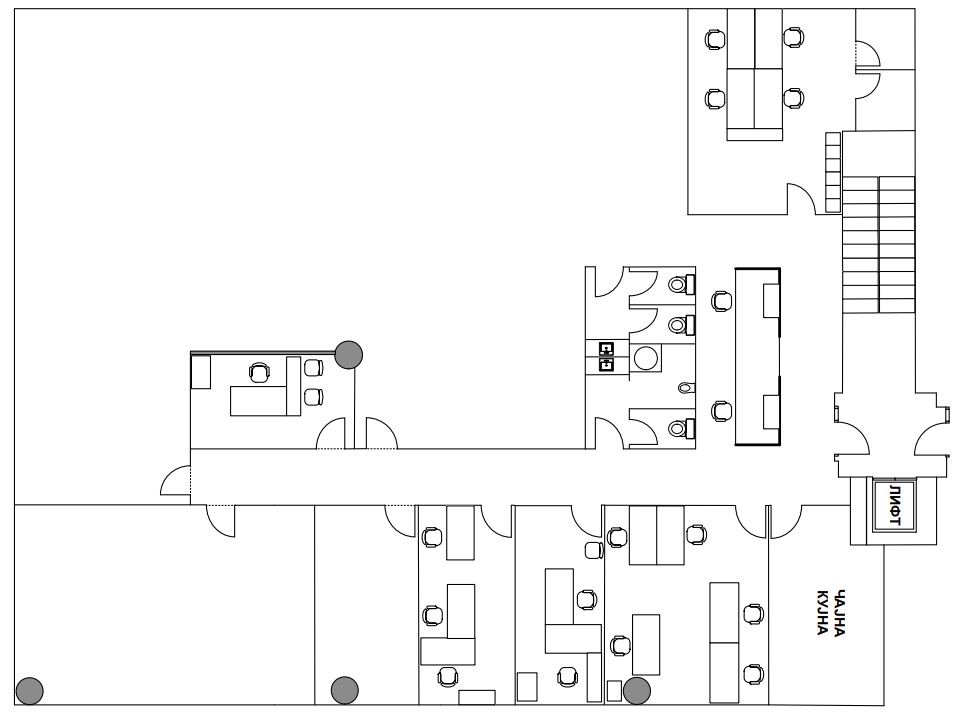
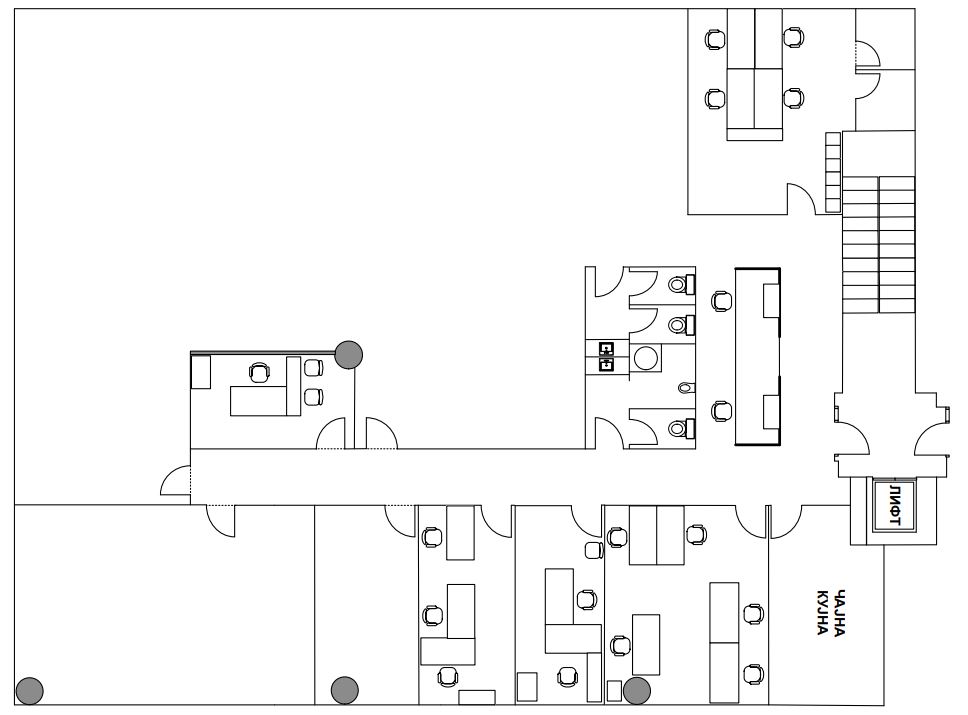
ИД На Имот: 25-0135
- Канцеларија
- 632 m²
Опис
Се издава канцеларија во Карпош во близина на Ми Да.
Просторот е поделен на 2 дела, првиот дел е 412м2, а другиот е 220м2.
Канцеларијата е достапна од 01.01.2026 година.
Цена: 15 евра по м2
Карактеристики
Калкулатор за Кредит
Monthly
-
Down Payment
-
Loan Amount
-
Monthly Mortgage Payment
-
Property Tax
-
Home Insurance
-
Monthly HOA Fees








