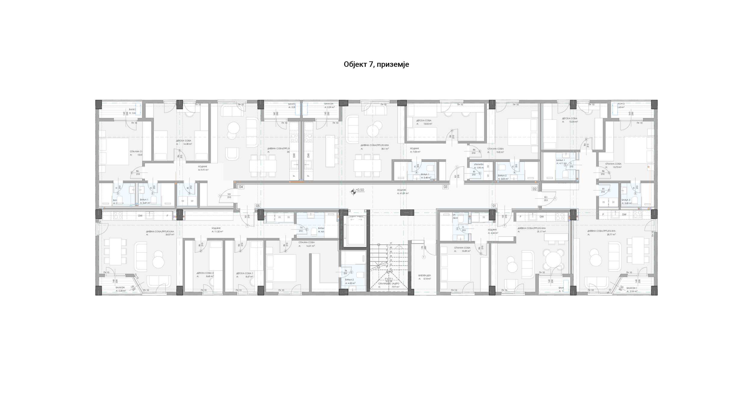
Pick a flat