Се продава нов стан на Тафталиџе 2
- 270,900€
Се продава нов стан на Тафталиџе 2
- 270,900€
Преглед
ИД На Имот: 25-0072
- Луксузен Апартман
- 4
- 3
- 1
- 126 m²
- 2026
Опис
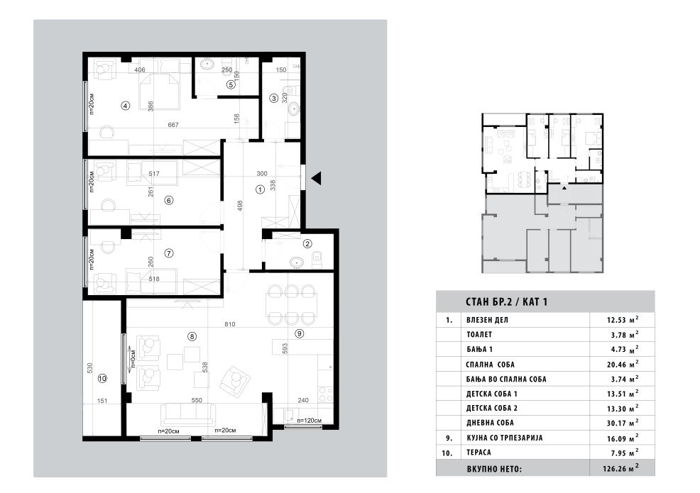
Се продава стан во нова зграда на улица Осло.
Станот е со површина од 126 м2, на прв кат со североисточна ориентација.
Зградата е во изградба и ќе биде завршена во декември 2026 година.
Калкулатор за Кредит
Monthly
-
Down Payment
-
Loan Amount
-
Monthly Mortgage Payment
-
Property Tax
-
Home Insurance
-
Monthly HOA Fees
